CONTEMPORARY FAMILY HOME CONVERSION

BEFORE

PHOTO‑REALISTIC IMAGE OF A PROPOSAL (CONSTRUCTION IN PROGRESS)
This project involved the architectural conversion of two adjoining terraced cottages into a single contemporary family home. The design carefully unifies the existing structures to create a cohesive and spacious residence while respecting the original character of the buildings.
The completed home provides four well-proportioned bedrooms and two generous lounge spaces, offering flexibility for modern family living. New balconies were introduced to enhance natural light, improve ventilation, and strengthen the connection between indoor and outdoor spaces.
The transformation focuses on improved spatial flow, modern functionality, and a refined architectural language, resulting in a comfortable and practical family home tailored to contemporary living.



EXTENSION TO THE REAR ELEVATION WITH GARDEN-FACING IMPROVEMENTS

BEFORE

PHOTO‑REALISTIC IMAGE OF A PROPOSAL (CONSTRUCTION IN PROGRESS)
This project involved the addition of a conservatory to a four-bedroom family home, positioned within the rear garden to enhance the connection between the house and its outdoor space. The design was carefully integrated with the existing property, creating a bright and functional extension that increases usable living space.
The conservatory allows natural light to flood the interior and provides year-round views of the garden, improving both the quality of the internal environment and the overall functionality of the home. The result is a practical and visually cohesive addition that supports modern family living.



GROUND & FIRST FLOOR EXTENSIONS WITH FULL REFURBISHMENT AND REPLANNING

BEFORE

PHOTO‑REALISTIC IMAGE OF A PROPOSAL (CONSTRUCTION IN PROGRESS)
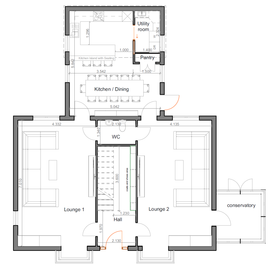
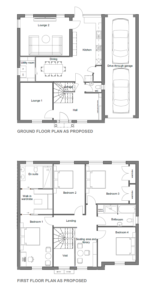
This project involved a comprehensive house extension and internal reconfiguration to significantly enhance both space and functionality. The ground floor was extended to create a second lounge and a larger, more open kitchen, improving flexibility for family living and entertaining.
The existing garage was converted from a single to a double garage, increasing storage and parking capacity. On the first floor, the layout was carefully reworked to improve flow and usability. The master bedroom was enlarged to include a walk-in wardrobe and en-suite bathroom, alongside the creation of an additional bedroom.
The overall design delivers a well-balanced family home with improved spatial efficiency, modern comfort, and a layout tailored to contemporary living.


FRONT PORCH EXTENSION

BEFORE

PHOTO‑REALISTIC IMAGE OF A PROPOSAL (CONSTRUCTION IN PROGRESS)
This project involved the addition of a front porch to improve both functionality and circulation in the home. The original corridor was very narrow, and there was no ground-floor toilet. The new porch incorporates a convenient WC and provides extra hall space, enhancing accessibility and creating a welcoming entrance to the property.



FIRST FLOOR EXTENSION

BEFORE

PHOTO‑REALISTIC IMAGE OF A PROPOSAL (CONSTRUCTION IN PROGRESS)
This project involved a first-floor extension above the existing ground-floor kitchen of a three-bedroom house. The new extension provides an additional bedroom, thoughtfully designed to meet the needs of a growing family while maintaining the character and flow of the existing home.


GROUND AND FIRST-FLOOR EXTENSION WITH FULL REFURBISHMENT AND INTERNAL RECONFIGURATION

BEFORE

PHOTO‑REALISTIC IMAGE OF A PROPOSAL (CONSTRUCTION IN PROGRESS)
This project involved extending and reconfiguring a single-storey bungalow to create additional living spaces. The existing garage was converted into an extra bedroom with a staircase leading to the loft, which was transformed into an additional bedroom and a dedicated home office. The design maximizes the use of available space while maintaining a cohesive and functional layout for modern family living.


GARAGE PROJECT


PHOTO‑REALISTIC IMAGE OF A PROPOSAL (CONSTRUCTION IN PROGRESS)
This project involved the design and construction of a garage in a new housing development in Whittlesey. The new-build house was compact and lacked adequate storage, so the garage was created to provide additional space for both vehicles and bicycles. The design delivers practical functionality while complementing the character of the surrounding homes.
